Este proyecto es un encargo de reforma y ampliación de las oficinas de una nave industrial. El objetivo es trasladarlas fuera de la nave y ganar el espacio interior que antes ocupaban como espacio de trabajo.
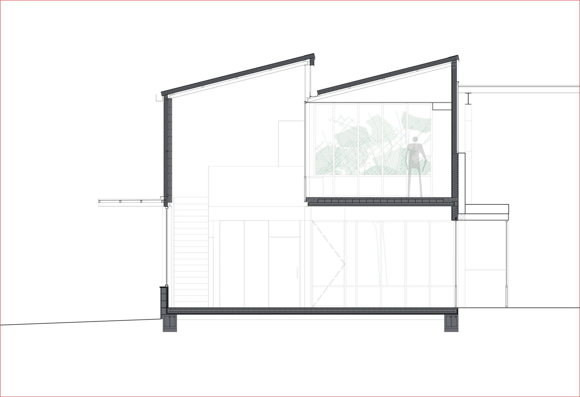
El nuevo edificio se sitúa pegado a la nave como una extensión de esta. Adopta el lenguaje fabril como columna de desarrollo del proyecto desde el comienzo. Con una tipología de cubierta en forma de diente de sierra que permite resolver dos puntos: introducir iluminación natural a la oficina desde el norte para no aumentar la carga térmica y, a través de una cercha, colgar el apoyo de la planta superior para evitar tener pilares intermedios en planta baja. Se consigue así un espacio más versátil por si hubiera futuras modificaciones.
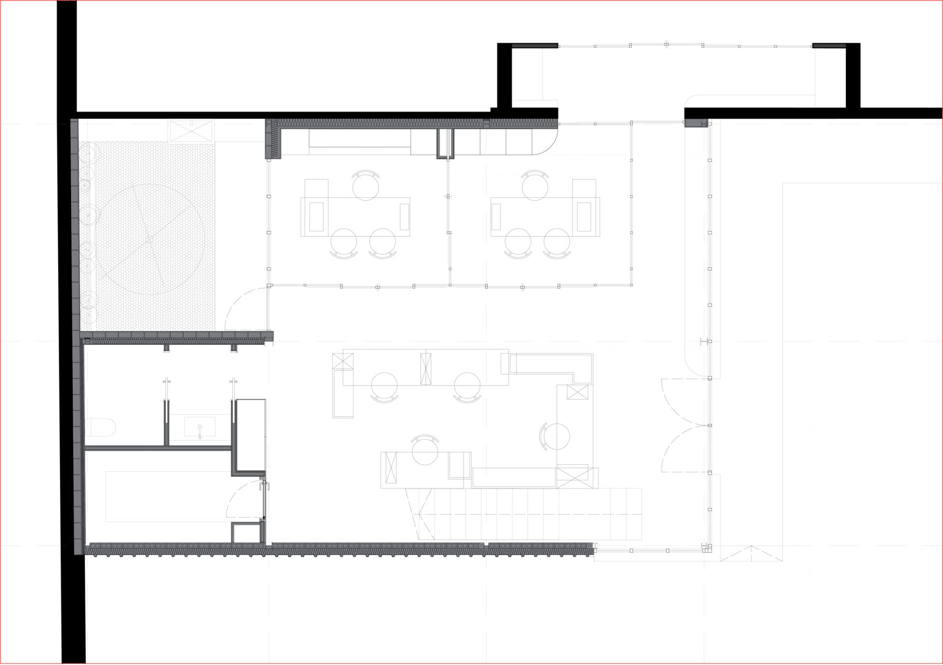
El programa requería dos despachos privados con amplia visión tanto de la fábrica como de la entrada a la misma y de la propia oficina. Una zona de trabajo amplia que configura una doble altura, un archivo y un aseo, todo ello en planta baja. En planta primera se sitúa la sala de reuniones /showroom y una pequeña terraza.
Un patio ubicado en la esquina Noroeste dota de iluminación natural al conjunto y permite que el edificio se abra a él, cerrando completamente su fachada a sur. Se abre un ventanal corrido a Este, por donde se accede desde el exterior, quedando las fachadas norte y Oeste como medianeras. Se consigue así una zona de trabajo agradable protegida del entorno exterior.
El proyecto se realiza con una modulación de 70cm que condiciona tanto sus elementos estructurales como los de cerramiento y carpintería. La intención es utilizar la propia estructura y cerramientos como acabados del proyecto, simplificando al máximo la complejidad de este.
El acero es el protagonista del edificio, desde la estructura hasta los cerramientos exteriores e interiores, aportando continuidad entre el nuevo cuerpo de oficinas y la nave preexistente.
